Проект 2-х этажного дома с 4-мя спальнями
метраж: 230 м2
номер лота: 0909
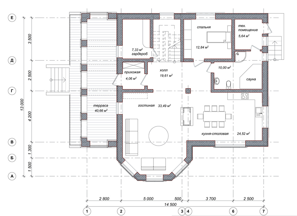
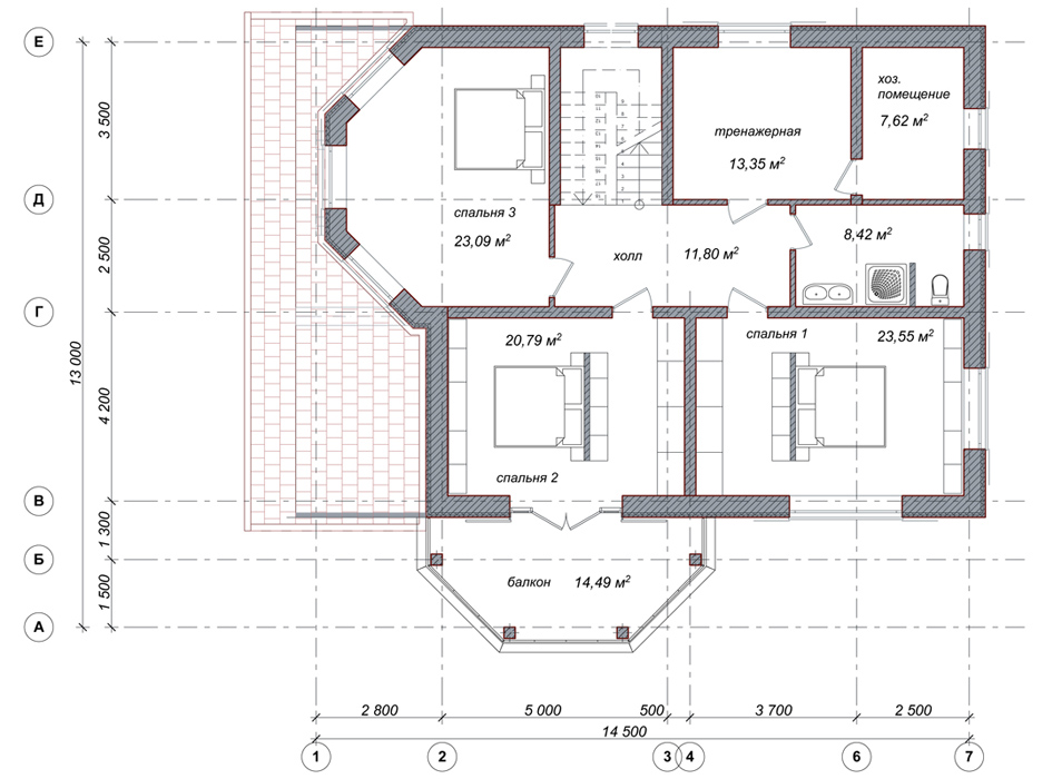
Проект 2-х этажного эффектного дома, крыша- натуральная черепица. Общая площадь 230 м.кв. Высокие потолки, на втором этаже своды, парадная лестница. В доме 4 спальни, большая гостиная с кухней, прачечная, два санузла, большая гардеробная. Большие окна дают много света в доме. Стоимость строительства 1000$ за метр кв. включает в себя полную внутреннюю и наружную отделку ( с натуральным камнем на фасадах), встроенные шкафы , кухня и все двери из натурального дерева, потолочные вентиляторы, кондиционеры в спальнях, испанская плитка на полу. Срок строительства 11 месяцев. Дополнительно оплачивается участок.
+7911-026-8833, +1829-808-4888 Viber, WhatsApp




.jpg/120x120-crop.jpeg)




